物件の概要
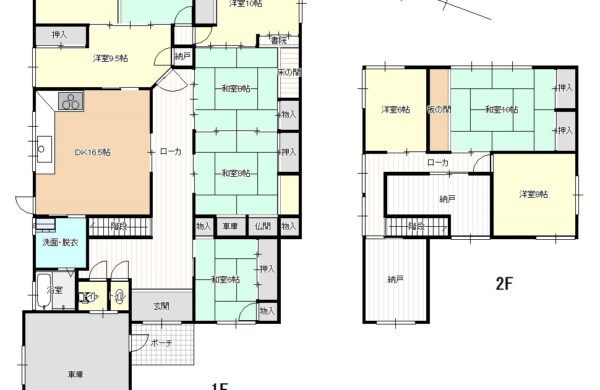
○部屋数10DK!収納スペースも多く大家族でもOK
○車で5分圏内にスーパー、コンビニ、ドラッグストア、病院など生活関連施設多数あり
○令和10年伏木中学校に小学校併設予定
○現在小中一貫校へ統合工事中!
| 所在地 | 高岡市伏木一宮1丁目4-13 |
|---|---|
| 価格 | 220万円 消費税 不要 |
| 築年月 | 昭和63年10月 築 |
物件の詳細
土地
| 公簿 | 300.00㎡ 90.75坪 |
|---|---|
| 実測 | ㎡ 坪 |
| 私道負担面積 | |
| 地目 | 宅地 |
| 土地権利 | 所有権 |
| 間口 | 12.7m |
| 奥行 | 23.5m |
建物
| 連棟 | 一戸建て |
|---|---|
| 間取り | 10DK |
| 構造・工法 | 木造瓦葺2階建 |
| 床面積 | 230.16㎡ 69.62坪 |
| 1階 163.92㎡ 2階 66.24㎡ 3階 ㎡ 延 230.16㎡ |
|
| 特別施設負担 | 無し |
接道
| 種別 | 一方 |
|---|---|
| 方向 | 西 |
| 道路幅 | 3.5m |
| 公道・私道 | 公道 |
| 舗装 | あり |
| 融雪 | なし |
その他
| 設備 | 上水道/下水道/個別プロパンガス/駐車場 3台 |
|---|---|
| 引渡 | 即日 |
| 取引形態 | 媒介 |
| 空 | 空家 |
| リフォーム | ボイラー水回り配管など修理交換が必要 雨漏り原因修理済、雨漏り跡あり |
| 備考 | 第一種中高層住居専用地域 道路は43条2項2号道路(セットバックあり)、 準防火地域、埋蔵文化財宝蔵区域(越中国府関連遺跡) |
























